Крекшино (МЦД-4) (10 мин. транспортом)
Митькино д. (Одинцовский гор. округ)
Дата публикации: 20 июня 2025
Дата обновления: 16 декабря 2025
+7 (985) 616-35-95
Название: ЖК "Аккорд. Smart-квартал"
От застройщика: 0 квартир в продаже
9 200 000 Р
Крекшино (МЦД-4) (10 мин. транспортом)
Митькино д. (Одинцовский гор. округ)
Дата публикации: 20 июня 2025
Дата обновления: 16 декабря 2025
+7 (985) 616-35-95
Название: ЖК "Аккорд. Smart-квартал"
От застройщика: 0 квартир в продаже
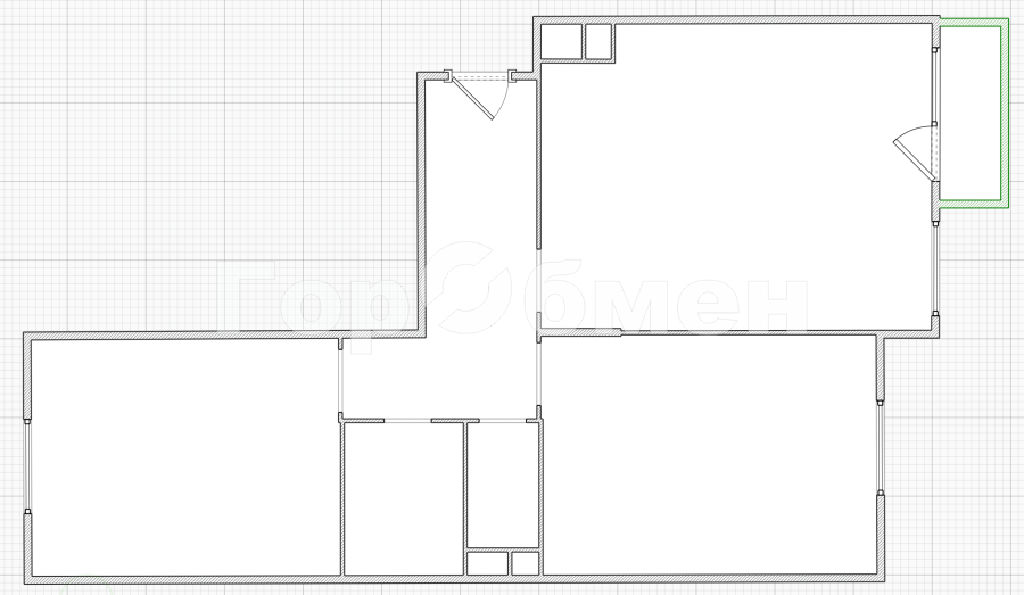
Этаж: 3 / 4
Общая: 63,6 м2
Жилая: 30 м2
Кухня: 20 м2
Комнаты: 16 14 м2
Балкон/лоджия: балкон
Лифт: есть лифт
Окна: окна во двор
Санузел: раздельный
Мусоропровод: не указано
Состояние квартиры: требуется ремонт
Тип дома: панельный
Год постройки: 2019
Территория: огороженная
Парковка: не указано
Статус сделки: продажа
Сделка: прямая продажа
Собственность: не указано
Основание права собственности: не указано
Продается просторная 2-х комнатная квартира с изолированными комнатами и идеальной кухней-гостиной. Квартира под ремонт (без отделки от застройщика). Хорошая продуманная планировка, тип расположения комнат - распашонка. Хорошие жилые комнаты 16 и 14 кв.м, большая кухня-гостиная с выходом на балкон 20 кв.м. Раздельный санузел. Два водных стояка - на кухне и в туалете. Высокие потолки 3 м.
Малоэтажная застройка, в комплексе только 4-х этажные дома. Как следствие - соседи друг друга знают, дети могут спокойно гулять на спортивных и детских площадках. Очень чисто, большие парковки, всегда есть где припарковаться. До всей инфраструктуры можно доехать на машине за 7-10 минут. Кроме того сюда ездят все доставки: Вкусвилл за 2 часа, перекресток, пятёрочка, Дикси, Озон, WB и т.д.
До МЦД4 Крёкшино или Ванино - 10 минут на транспорте, до центра Москвы 35 минут по скоростному Северному дублеру Кутузовского проспекта. Еще более комфортно будет со своей машиной.
В целом очень уютный, тихий и спокойный комплекс с чистым воздухом - все преимущества проживания за городом.